Rif: MC - CASTELLOTIVOLI
TIVOLI
ROMA
TIVOLI – Sulla sommità del Parco Naturale del Monte Catillo immerso in un parco di ulivi secolari di 70 ettari, svetta un antico castello del '700 adibito ad hotel, che dopo una lunga attenta ristrutturazione è tornato allo splendore ed al fasto di un tempo. Stiamo parlando dell'Hotel Torre Sant'Angelo, situato a Tivoli. Una struttura composta da 35 stanze e un ristorante, che trasuda di storia. L'immobile è un antico castello completamente ristrutturato che ha nelle sue fondamenta ben 2000 anni di storia. Sorge infatti sulle rovine della villa di Catullo, famoso poeta latino, fu affidato in seguito ai monaci Olivetani, fino a diventare, nel 1500, la residenza estiva dei principi Massimo di Roma. Attualmente noto come Hotel Torre Sant'Angelo - Ristorante del Castello, questo elegante hotel quattro stelle si trova a Tivoli, in una posizione strategica a soli 35 km da Roma. La sua collocazione elevata regala una vista straordinaria sulla campagna romana, abbracciando la Valle dell'Aniene fino all'orizzonte della Capitale. Il contesto paesaggistico, arricchito dalla vicinanza a Villa d'Este e Villa Gregoriana, esalta il fascino storico e artistico di questa proprietà unica.
L'accesso avviene tramite una strada privata che si dirama da Via Quintilio Varo, conducendo direttamente al piazzale d'ingresso principale. Il complesso, destinato ad attività ricettiva e ristorativa, si sviluppa su quattro piani fuori terra e un piano seminterrato, circondato da ampie aree esterne e impreziosito da una splendida piscina panoramica. La struttura segue il modello architettonico della “corte chiusa”, tipologia di origine storica che si è evoluta nel tempo. Le sue radici affondano nell'antichità: sorge infatti sui resti della villa del poeta latino Catullo, trasformata prima in monastero dei monaci Olivetani e poi, nel 1500, nella residenza estiva dei principi Massimo di Roma.
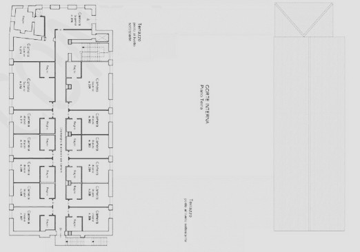
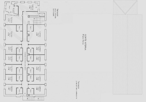
Il cuore del complesso è la corte interna quadrata, attorno alla quale si sviluppano i quattro corpi principali. Gli ambienti sono collegati da due vani scala, un ascensore e percorsi interni, preservando il fascino storico della struttura. Il piano seminterrato, esteso su circa 300 mq, ospita nove locali destinati a funzioni tecniche e di servizio. Qui si trovano la centrale idrica con cisterna, il gruppo elettrogeno e le caldaie, oltre a depositi, spogliatoi e un'area bar con accesso a una suggestiva grotta storica. L'ampia zona bagni per gli ospiti completa la disposizione di questo livello.
Il piano terra, con oltre 1400 mq, accoglie le principali aree di accoglienza e ristorazione. L'ingresso principale conduce alla hall e alla reception, dove si trovano anche gli uffici amministrativi, l'ascensore e una delle due scale interne. In questa zona sono presenti il bar e la prima delle tre eleganti sale per eventi, oltre alla cucina professionale dotata di cella frigorifera e locali di servizio. Spostandosi verso Nord/Est si trovano la seconda sala banchetti, i magazzini e l'area colazioni, con accessi alla corte interna e all'area retrostante. La terza sala per eventi, nella porzione Nord/Ovest, è ideale per ricevimenti e meeting. L'ala Sud/Ovest ospita una galleria suggestiva, bagni per gli ospiti, tre camere da letto e gli accessi alla corte interna e al terrazzo laterale.
Il primo piano, articolato in due volumi sopraelevati per un totale di circa 840 mq, è collegato tramite scale interne e terrazzi panoramici. La porzione Sud/Est ospita 13 camere raffinate, di cui 10 doppie e 3 superior, accessibili anche tramite ascensore. La porzione Nord/Ovest accoglie invece 5 camere, suddivise tra doppie e superior, offrendo un'ospitalità esclusiva in ambienti eleganti e confortevoli. I terrazzi panoramici, raggiungibili direttamente dalle camere o dai corridoi, regalano una vista mozzafiato sulla Valle dell'Aniene e i paesaggi circostanti.
Il secondo piano, esteso per circa 490 mq nella porzione Sud/Est, ospita ulteriori 13 camere, anch'esse suddivise tra doppie e superior, garantendo agli ospiti un soggiorno in totale comfort. Un vano murario conduce a una scala esterna in ferro, che permette l'accesso al terrazzo panoramico sottostante, un angolo di relax immerso in un contesto paesaggistico di rara bellezza.
Le ampie aree esterne valorizzano ulteriormente la proprietà, includendo parcheggi, percorsi pedonali e carrabili, terrazzi panoramici, la corte interna pavimentata e la piscina, perfettamente integrata nel contesto architettonico. A completare il complesso, la tenuta si estende su circa 70 ettari di terreno, offrendo un'oasi di esclusività e prestigio immersa nella storia e nella natura.
L'accesso avviene tramite una strada privata che si dirama da Via Quintilio Varo, conducendo direttamente al piazzale d'ingresso principale. Il complesso, destinato ad attività ricettiva e ristorativa, si sviluppa su quattro piani fuori terra e un piano seminterrato, circondato da ampie aree esterne e impreziosito da una splendida piscina panoramica. La struttura segue il modello architettonico della “corte chiusa”, tipologia di origine storica che si è evoluta nel tempo. Le sue radici affondano nell'antichità: sorge infatti sui resti della villa del poeta latino Catullo, trasformata prima in monastero dei monaci Olivetani e poi, nel 1500, nella residenza estiva dei principi Massimo di Roma.
Il cuore del complesso è la corte interna quadrata, attorno alla quale si sviluppano i quattro corpi principali. Gli ambienti sono collegati da due vani scala, un ascensore e percorsi interni, preservando il fascino storico della struttura. Il piano seminterrato, esteso su circa 300 mq, ospita nove locali destinati a funzioni tecniche e di servizio. Qui si trovano la centrale idrica con cisterna, il gruppo elettrogeno e le caldaie, oltre a depositi, spogliatoi e un'area bar con accesso a una suggestiva grotta storica. L'ampia zona bagni per gli ospiti completa la disposizione di questo livello.
Il piano terra, con oltre 1400 mq, accoglie le principali aree di accoglienza e ristorazione. L'ingresso principale conduce alla hall e alla reception, dove si trovano anche gli uffici amministrativi, l'ascensore e una delle due scale interne. In questa zona sono presenti il bar e la prima delle tre eleganti sale per eventi, oltre alla cucina professionale dotata di cella frigorifera e locali di servizio. Spostandosi verso Nord/Est si trovano la seconda sala banchetti, i magazzini e l'area colazioni, con accessi alla corte interna e all'area retrostante. La terza sala per eventi, nella porzione Nord/Ovest, è ideale per ricevimenti e meeting. L'ala Sud/Ovest ospita una galleria suggestiva, bagni per gli ospiti, tre camere da letto e gli accessi alla corte interna e al terrazzo laterale.
Il primo piano, articolato in due volumi sopraelevati per un totale di circa 840 mq, è collegato tramite scale interne e terrazzi panoramici. La porzione Sud/Est ospita 13 camere raffinate, di cui 10 doppie e 3 superior, accessibili anche tramite ascensore. La porzione Nord/Ovest accoglie invece 5 camere, suddivise tra doppie e superior, offrendo un'ospitalità esclusiva in ambienti eleganti e confortevoli. I terrazzi panoramici, raggiungibili direttamente dalle camere o dai corridoi, regalano una vista mozzafiato sulla Valle dell'Aniene e i paesaggi circostanti.
Il secondo piano, esteso per circa 490 mq nella porzione Sud/Est, ospita ulteriori 13 camere, anch'esse suddivise tra doppie e superior, garantendo agli ospiti un soggiorno in totale comfort. Un vano murario conduce a una scala esterna in ferro, che permette l'accesso al terrazzo panoramico sottostante, un angolo di relax immerso in un contesto paesaggistico di rara bellezza.
Le ampie aree esterne valorizzano ulteriormente la proprietà, includendo parcheggi, percorsi pedonali e carrabili, terrazzi panoramici, la corte interna pavimentata e la piscina, perfettamente integrata nel contesto architettonico. A completare il complesso, la tenuta si estende su circa 70 ettari di terreno, offrendo un'oasi di esclusività e prestigio immersa nella storia e nella natura.
Consistenze
| Descrizione | Superficie | Sup. comm. |
|---|---|---|
| Principali | ||
| Magazzino - piano terra | 250 Mq | 250 Mqc |
| Altro - seminterrato | 300 Mq | 75 Mqc |
| Accessorie | ||
| Terreno - piano terra | 680.000 Mq | 13.600 Mqc |
| Totale | 13.925 Mqc | |
